Предлагается к продаже уникальная вилла на Сардинии, расположенная в коммуне Карлофорте, на острове Сан-Пьетро — одном из самых живописных и аутентичных мест юго-западной Сардинии. Объект находится на возвышенности, всего в двух километрах от центра города и в двухстах метрах от моря по прямой линии. Уединённое положение, панорамный вид и непосредственная близость к побережью делают эту виллу на Сардинии исключительным предложением на рынке элитной недвижимости.
Строения на территории
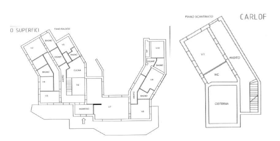
- главное здание площадью около 420 кв.м, выполненное в традиционной кладке, с двумя уровнями: приподнятым этажом и полуподвалом. Первый этаж состоит из просторной гостиной, объединённой из двух залов, большой кухни, кабинета-гостиной, шести спален и четырёх ванных комнат. Интерьеры отделаны штукатуркой, керамической плиткой, мрамором и терракотой. Окна и двери выполнены из дерева, крыша покрыта натуральным сланцем. Полуподвал, доступный как изнутри, так и снаружи, включает два помещения, санузел и резервуар для сбора дождевой воды. Электроснабжение предусмотрено как на 220 В, так и на 380 В (для насосов скважин). Водоснабжение осуществляется через автономную систему с гидроаккумулятором и оцинкованными трубами.
- гостевой дом (категория A/7), площадью 88,5 кв.м (165 кв.м по кадастру), построенный из несущей каменной кладки с черепичной крышей. Внутри — три комнаты, кухня и ванная.
- фермерский домик площадью 28 кв.м, выполненный из камня с деревянными балками, расположена ближе ко второму въезду
- хозяйственное строение площадью около 37 кв.м, требующее полной реконструкции.
- Через дорогу от главного дома, ближе к морю, располагается дополнительное строение — ангар и жилое помещение с санузлом, общей площадью около 79 кв.м, построенное в 1969 году на основании разрешения Капитанерии порта Кальяри. Здание используется для хранения и обслуживания малых судов и оснащено бетонной площадкой и частным причалом длиной около 20 метров для швартовки лодок.
Участок
Общий земельный участок составляет около 2,7 га. Участок частично выходит к морю, обеспечивая исключительную приватность. Наличие нескольких построек, природный ландшафт и доступ к морю создают широкие возможности для использования комплекса.
Как добраться
Расположение на острове Сан-Пьетро, в нескольких минутах от центра Карлофорте, делает объект особенно привлекательным. Добраться до виллы на Сардинии можно из Кальяри: дорога до порта Портовесме или Калазетта занимает около 1,5 часов, затем — 30 минут на пароме, и от порта Карлофорте всего 2 км на машине. Район славится кристально чистым морем, живописными бухтами и отсутствием массового туризма. Это место выбирают те, кто ценит настоящую природу, морской воздух и неспешную, качественную жизнь.
Назначение и Потенциал
Недвижимость нуждается в капитальном ремонте. Из этой виллы на Сардинии можно создать по-настоящему шикарный бутик-отель. Прекрасное расположение, уединённая атмосфера, близость к морю и собственный причал делают её идеальной базой для создания уникального объекта в сфере гостеприимства. Здесь можно реализовать проект, способный привлечь туристов, ищущих аутентичность, комфорт и природу — всё, чем богата Сардиния.
Возможность преобразования в бутик-отель
Недвижимость обладает исключительным потенциалом для реконструкции под бутик-отель высокого класса. Расположение в живописной зоне Tacca Rossa, на острове Сан-Пьетро (Карлофорте), делает этот объект особенно привлекательным для инвесторов, ориентированных на премиальный туристический сектор Сардинии.
Благодаря большой площади участка, возможно обустроить отель с бассейном, теннисным кортом и другими удобствами, сохранив при этом природную гармонию и морскую панораму.
Важно отметить, что для проектов в гостинично-рекреационном секторе на данном участке предусмотрены строительные бонусы по увеличению кубатуры примерно на 40%, что значительно расширяет возможности развития.
Кроме того, региональная программа «Sostegno alla transizione del Sulcis Iglesiente» (2024–2029) предусматривает финансирование инвестиционных проектов в туристико-рецептивной сфере. По инициативе Federalberghi срок подачи заявок продлён до 10 декабря 2025 года, что открывает дополнительные возможности для инвесторов, заинтересованных в создании или реконструкции гостиничного комплекса на Сардинии.
Остров Сан-Пьетро — одно из самых очаровательных мест Средиземноморья, сочетающее природную красоту, уединение и огромный потенциал для создания отеля класса люкс.



